1-407-575-5392
Menu

3130 Butler Bay N Drive, Windermere, FL

NEXT
PREV
$1,725,000

($384/sqft)

List Status: Active
3130 Butler Bay N Drive
Windermere, FL 34786


4 beds
4 baths
4490 living sqft
Top Features
  • View: Water, Park/Greenbelt
  • Subdivision: Butler Bay
  • Built in  1985
  • Single Family Residence
Description
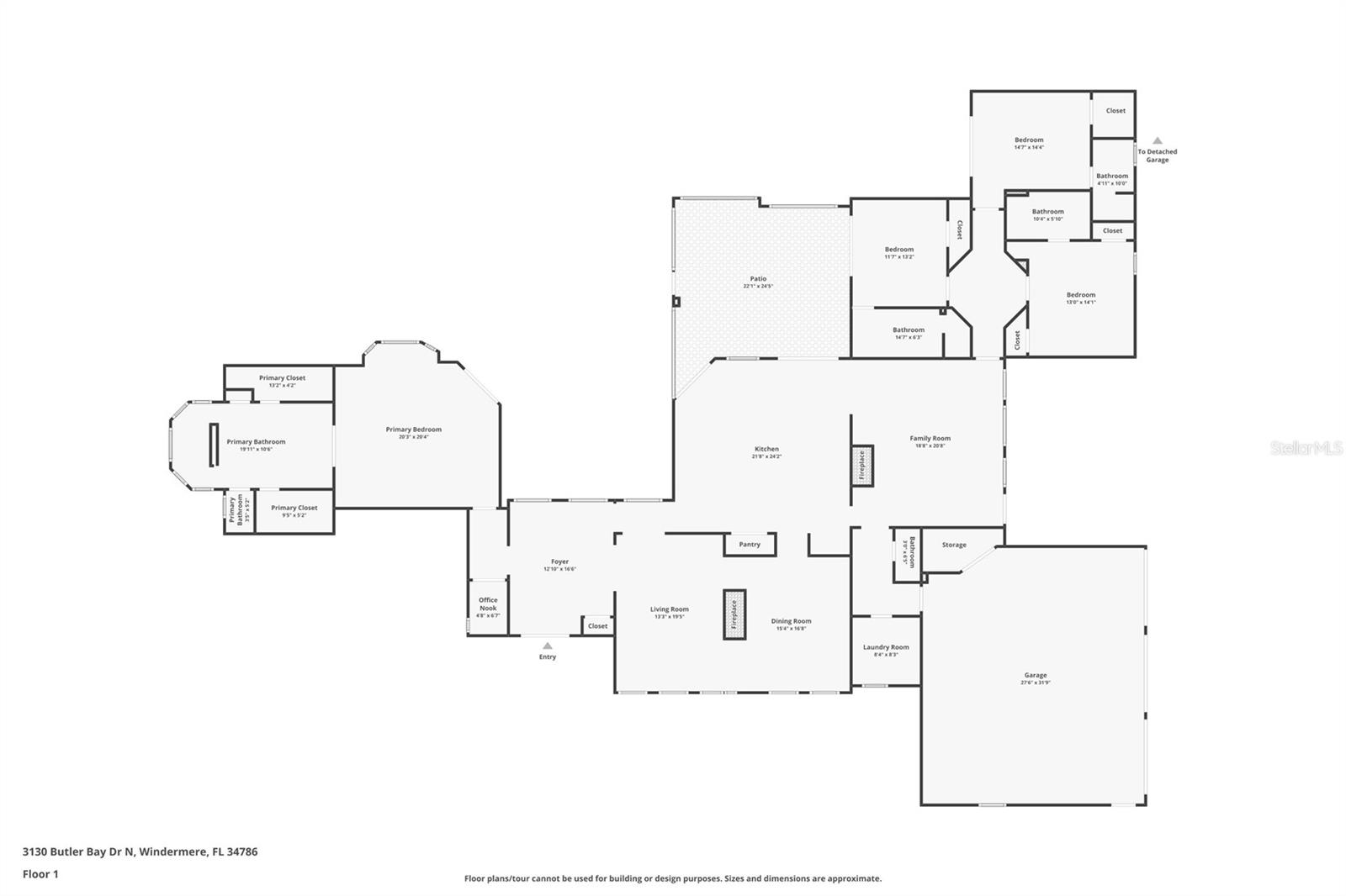
This one-of-a-kind estate in the gated Windermere Club combines timeless elegance with rare features seldom found in the area, including four garage bays—one of them separate from the rest, with an adjoining flex space that can serve as a gym, studio, or easily transform into private guest quarters or multigenerational living. A porte cochere and sweeping circular drive create a striking first impression and lead to an inviting foyer that opens to gracious formal living and dining rooms, perfect for entertaining. The primary suite is a private sanctuary, designed with pool views, a spacious sitting area, and a vestibule entry that includes a small room ideal for an office nook or personal retreat. The spa-inspired bath is beautifully appointed with dual vanities, a soaking tub, and an oversized walk-in shower, while two custom closets provide abundant storage. Equally thoughtful are the secondary bedrooms, each with its own en-suite bath. They are arranged along a wide hallway that can be closed off entirely, creating a separate wing that offers privacy and comfort for family or guests. At the heart of the home, the gourmet kitchen is both a showpiece and gathering place, featuring an expansive island, custom cabinetry, and intricate tilework beneath a statement hood, with a barn-style door leading to the pantry. The utility room includes built-in cabinetry and a utility sink for added convenience, while the family room offers relaxed living space with views that draw you outdoors. Just beyond, a patio with a charming wood trellis extends the living space and creates a perfect spot for quiet moments or intimate gatherings. The backyard was designed for resort-style living, with a sparkling pool and spa, dedicated pool bath, screened lanai, and a summer kitchen perfect for dining al fresco. Framed by lush green space and the peaceful backdrop of the former Windermere Club golf course, this residence offers a sense of privacy and serenity while being just minutes from
Property Details
Additional Information
Additional Lease Restrictions
Verify with HOA
Additional Parcels YN
false
Additional Rooms
Breakfast Room Separate, Den/Library/Office, Family Room, Formal Dining Room Separate, Formal Living Room Separate, Inside Utility
Appliances
Built-In Oven, Cooktop, Dishwasher, Disposal, Dryer, Electric Water Heater, Exhaust Fan, Microwave, Range, Range Hood, Refrigerator, Washer, Water Filtration System, Wine Refrigerator
Architectural Style
Mediterranean
Association Amenities
Gated
Association Email
ddolo@sentrymgt.com
Association Fee
2860
Association Fee Frequency
Annually
Association Fee Includes
Cable TV, Internet
Association Fee Requirement
Required
Association URL
platinumassociationmanagement.com
Association YN
true
Attached Garage YN
true
Available For Lease YN
1
Bathrooms Total Integer
6
Building Area Source
Public Records
Building Area Total
6928
Building Area Total Srch SqM
643.63
Building Area Units
Square Feet
Calculated List Price By Calculated SqFt
384.19
Carport YN
false
Community Features
Deed Restrictions, Gated Community - No Guard, Street Lights
Complex Community Name NCCB
WINDERMERE CLUB
Construction Materials
Block, Stucco
Cooling
Central Air, Ductless
Country
US
Cumulative Days On Market
22
Current Price
1725000.00
Direction Faces
Northeast
Elementary School
Windermere Elem
Exterior Features
French Doors, Lighting, Outdoor Grill, Outdoor Kitchen, Outdoor Shower, Sidewalk, Sliding Doors
Fencing
Masonry
Fireplace Features
Family Room, Gas, Living Room, Wood Burning
Fireplace YN
true
Flood Zone Code
X
Flood Zone Date
2021-09-24
Flood Zone Panel
12095C0215H
Flooring
Carpet, Tile, Wood
Foundation Details
Slab
Garage Dimensions
32x28
Garage Spaces
4
Garage YN
true
Heating
Central, Electric, Heat Pump
High School
Windermere High School
Homestead YN
1
Interior Features
Built-in Features, Ceiling Fans(s), Crown Molding, Eat-in Kitchen, High Ceilings, Primary Bedroom Main Floor, Solid Wood Cabinets, Split Bedroom, Stone Counters, Thermostat, Walk-In Closet(s), Window Treatments
Internet Address Display YN
true
Internet Automated Valuation Display YN
false
Internet Consumer Comment YN
false
Internet Entire Listing Display YN
true
Laundry Features
Electric Dryer Hookup, Inside, Laundry Room, Washer Hookup
Levels
One
List AOR
Orlando Regional
Living Area Meters
417.13
Living Area Source
Owner
Living Area Units
Square Feet
Lot Features
In County, Paved
Lot Size Acres
1.01
Lot Size Square Feet
43881
Lot Size Square Meters
4077
Middle Or Junior School
Bridgewater Middle
Minimum Lease
7 Months
Modification Timestamp
2025-10-10T16:45:09.685Z
Monthly HOA Amount
238.33
New Construction YN
false
Number Of Septics
2
Occupant Type
Owner
Other Equipment
Irrigation Equipment
Ownership
Fee Simple
Parcel Number
12-23-27-1107-01-420
Patio And Porch Features
Covered, Patio, Screened
Pet Restrictions
Verify with HOA
Pets Allowed
Yes
Pool Private YN
true
Postal Code Plus 4
7703
Previous List Price
1775000
Price Change Timestamp
2025-10-10T16:42:35.000Z
Public Survey Range
27
Public Survey Section
12
RATIO Current Price By Calculated SqFt
384.19
Realtor Info
Brochure Available, Floor Plan Available, See Attachments, Sign
Road Responsibility
Private Maintained Road
Road Surface Type
Paved
Roof
Concrete, Tile
Room Count
15
Security Features
Gated Community, Smoke Detector(s)
Senior Community YN
false
Sewer
Septic Tank
Showing Requirements
ShowingTime
Spa Features
Heated, In Ground
Spa YN
true
Status Change Timestamp
2025-09-18T19:22:27.000Z
Tax Annual Amount
11844
Tax Block
1
Tax Book Number
13-59
Tax Legal Description
BUTLER BAY UNIT 2 13/59 LOT 142
Tax Lot
142
Tax Year
2024
Total Acreage
1 to less than 2
Total Annual Fees
2860.00
Total Monthly Fees
238.33
Township
23
Universal Property Id
US-12095-N-122327110701420-R-N
Unparsed Address
3130 BUTLER BAY DR N
Utilities
Cable Available, Electricity Connected, Private, Propane, Sprinkler Meter, Water Connected
Vegetation
Mature Landscaping
Water Source
Well
Water View
Lake
Water View YN
1
Waterfront YN
false
Window Features
Blinds
Zoning
R-CE-C
Zoning Compatible YN
1
Neighborhood Map
Popup

Property Photos
Listing Photo
Listing Photo
Listing Photo
Listing Photo
Listing Photo
Listing Photo
Listing Photo
Listing Photo
Listing Photo
Listing Photo
Listing Photo
Listing Photo
Listing Photo
Listing Photo
Listing Photo
Listing Photo
Listing Photo
Listing Photo
Listing Photo
Listing Photo
Listing Photo
Listing Photo
Listing Photo
Listing Photo
Listing Photo
Listing Photo
Listing Photo
Listing Photo
Listing Photo
Listing Photo
Listing Photo
Listing Photo
Listing Photo
Listing Photo
Listing Photo
Listing Photo
Listing Photo
Listing Photo
Listing Photo
Listing Photo
Listing Photo
Listing Photo
Listing Photo
Listing Photo
Listing Photo
Listing Photo
Listing Photo
Listing Photo
Listing Photo
Listing Photo
Listing Photo
Listing Photo
Listing Photo
Listing Photo
Listing Photo
Listing Photo
Listing Photo
Listing Photo
Listing Photo
Listing Photo
Listing Photo
Listing Photo
Listing Photo
Listing Photo
Listing Photo
Listing Photo
Listing Photo
Listing Photo
Listing Photo
Listing Photo
Listing Photo
Listing Photo
Listing Photo
Listing Photo
Listing Photo
Listing Photo
Listing Photo
Listing Photo
Listing Photo
Listing Photo
Listing Photo
Listing Photo
Listing Photo
Listing Photo
Listing Photo
Listing Photo
Listing Photo
Listing Photo
Listing Photo
Listing Photo
Listing Photo
Listing Photo
Listing Photo
Listing Photo
Listing Photo
Listing Photo
Listing Photo
Listing Photo
Listing Photo
Listing Photo
Listing Photo
Listing Photo
Listing Photo
Listing Photo
Listing Photo
Listing Photo
Listing Photo
Listing Photo
Listing Photo
Listing Photo
Listing Photo
Listing Photo
Listing Photo
Listing Photo
Listing Photo
Listing Photo
Listing Photo
Listing Photo
Listing Photo
Listing Photo
Listing Photo
Listing Photo
Listing Photo
Listing Photo
Listing Photo
Listing Photo
Listing Photo
Listing Photo
Listing Photo
Listing Photo
Listing Photo
Listing Photo
Listing Photo
Listing Photo
Listing Photo
Listing Photo
Listing Photo
Listing Photo

MLS #MFRO6344707 Listing courtesy of Coldwell Banker Realty provided by Stellar MLS.

Similar Listings

$1,825,000
11226 Macaw Court
Windermere
4BR/4BA
| Active
$1,875,000
84 Oakdale St
Windermere
4BR/4BA
| Active



All listing information is deemed reliable but not guaranteed and should be independently verified through personal inspection by appropriate professionals. Listings displayed on this website may be subject to prior sale or removal from sale; availability of any listing should always be independent verified. Listing information is provided for consumer personal, non-commercial use, solely to identify potential properties for potential purchase; all other use is strictly prohibited and may violate relevant federal and state law. The source of the listing data is as follows: Stellar MLS (updated 4/19/26 11:03 PM) |

Listing Search



Translate Tool

Featured Listings
Windermere Real Estate
$649,000
4 BED
2 BATH
Windermere Gem: Fully Updated & Move-In Ready! Discover the perfect blend of modern luxury and prime location in the hig... Read More
Windermere Real Estate
$375,000
3 BED
2 BATH
WELL MAINTAINED TOWNHOME IN WINDERMERE! 3 BEDROOM 2.5 BATHROOMS! Located in the sought after Lake Reams Community only a... Read More
Windermere Real Estate
$825,000
5 BED
4 BATH
Check out 4309 Saltmarsh Sparrow Dr, a residence featuring a partial flooring replacement that enhances its overall pres... Read More
Windermere Real Estate
$1,375,000
5 BED
4 BATH
Under contract-accepting backup offers. Beautifully positioned on a private pond-front corner lot within the guard-gated... Read More
Windermere Real Estate
$821,000
3 BED
3 BATH
Impeccably maintained one-story pool home in the 24/7 guard gated community of Reserve at Belmere in Windermere. This mo... Read More
Contact Wendy Morris

407-575-5392

Wendy Morris LLC

Licensed in the State of Florida
BK 3146762
16797 Broadwater Avenue
Winter Garden, Florida 34787

Your privacy is our utmost concern. We will never sell your personal information. Privacy Policy
©2026 windermerefl.com - all rights reserved. | Site Map