1-407-575-5392
Menu

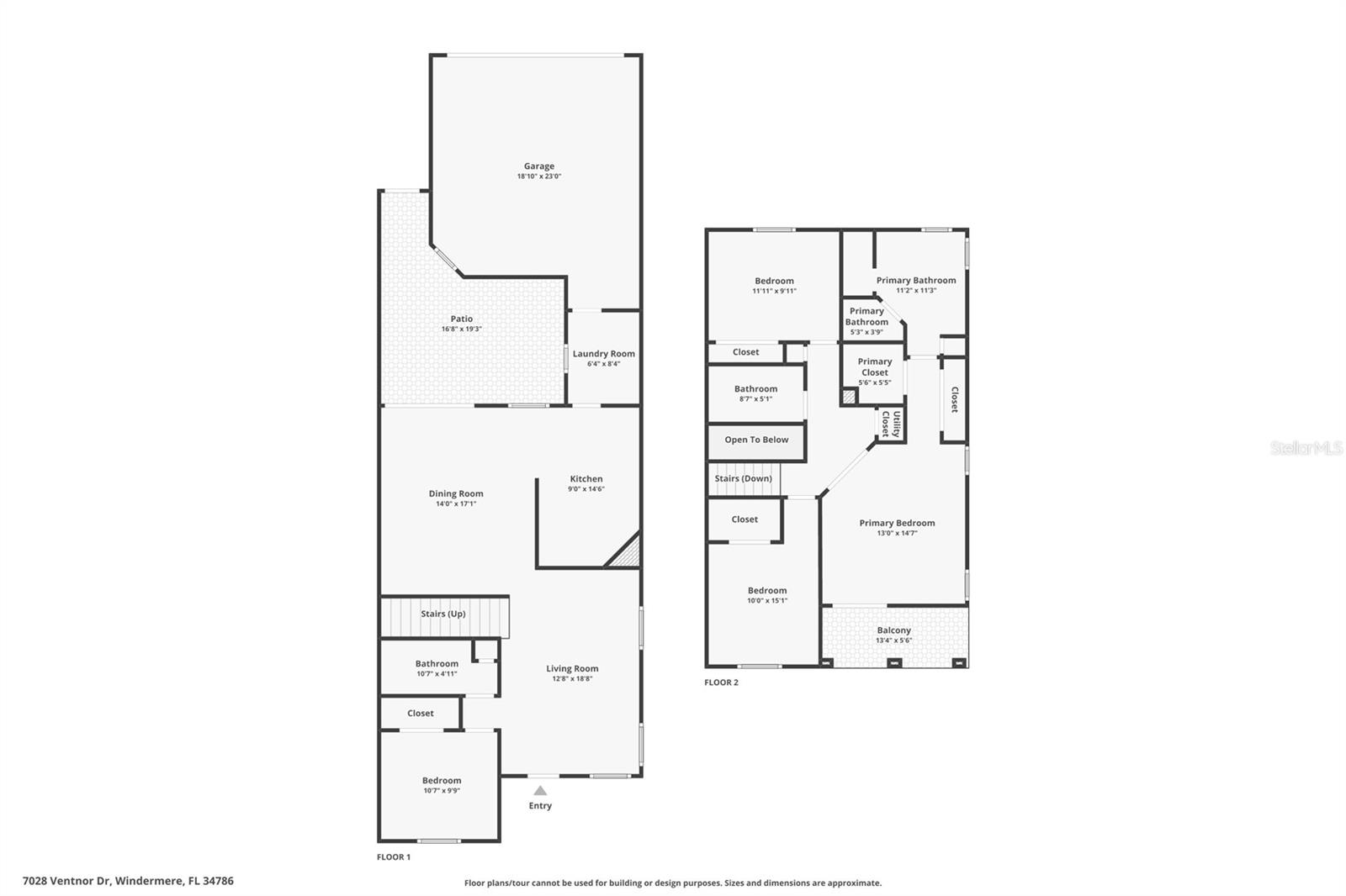
7028 Ventnor Drive, Windermere, FL

NEXT
PREV
$485,000

($245/sqft)

List Status: Pending
7028 Ventnor Drive
Windermere, FL 34786


4 beds
3 baths
1980 living sqft
Top Features
  • View: Park/Greenbelt, Trees/Woods, Pool
  • Subdivision: Preston Square
  • Built in  2008
  • Townhouse
Description
One or more photo(s) has been virtually staged. PRISTINE 4 Bedroom 3 Bath End Unit Townhome in Beautiful Preston Square Windermere with Brand New Roof and exterior paint. Charming Front Porch invites you into this fabulous two-story home. Lots of Natural light with wrap around windows and 10-foot ceilings. Stunning hardwood floors, new 6” baseboards in main living areas. Family Room has a stylish accent wall with board & batten design and a “secret door” to the understairs storage closet. Beautiful Sunburst Wood Shutters with hidden tilt have been added to the sliding doors leading to Courtyard. Spacious kitchen features 42” Solid Wood Cabinetry, granite countertops, accent backsplash, mood lighting and stainless steel Appliances. Downstairs Bedroom with walk-in closet and adjacent bath. Upstairs you’ll find the Owner’s suite with tray ceiling. A sliding door leads into a lovely balcony with pool views and a gorgeous magnolia tree providing shade and privacy. The Master Bath has double sinks, spacious garden tub, shower with double shower heads. There are two additional bedrooms and one bath on the 2nd level. The Courtyard is perfect for entertaining. Laundry room has a sink, solid wood cabinetry and window. Attached 2 Car Garage is spacious, and it has utility celling storage racks. Long garage driveway in the back of the home. Preston Square is a beautiful community with a Stunning Resort Style Swimming Pool, lush mature landscaping, basketball court, playground, fitness stations, and a large park that hosts movie nights & food trucks. It is conveniently located, close to everything you want and need. Restaurants, Coffee Shops, Multiple Shopping and Entertainment Venues, Beautiful Golf Courses, Hospitals. Top Rated School District. Close to major roads, can easily move around Orlando, Windermere, and Winter Garden. Enjoy the proximity to Orlando’s World Class Theme Parks.
Property Details
Additional Information
Additional Lease Restrictions
Per Association
Additional Parcels YN
false
Additional Rooms
Family Room, Great Room, Inside Utility
Appliances
Dishwasher, Disposal, Dryer, Electric Water Heater, Ice Maker, Microwave, Range, Refrigerator, Washer
Approval Process
Contact Jedi Management or go to. www.jedimanagement.com/preston-square
Association Amenities
Basketball Court, Other, Playground, Pool
Association Approval Required YN
1
Association Email
Avid property management
Association Fee
315
Association Fee Frequency
Monthly
Association Fee Includes
Pool, Maintenance Grounds, Pest Control
Association Fee Requirement
Required
Association URL
www.jedimanagement.com/preston-square
Association YN
true
Attached Garage YN
true
Available For Lease YN
1
Bathrooms Total Integer
3
Building Area Source
Public Records
Building Area Total
2542
Building Area Total Srch SqM
236.16
Building Area Units
Square Feet
Calculated List Price By Calculated SqFt
244.95
Carport YN
false
Community Features
Community Mailbox, Playground, Pool, Sidewalks, Street Lights
Construction Materials
Block, Concrete, Stucco
Contract Status
Appraisal, Financing, Inspections
Cooling
Central Air
Country
US
Cumulative Days On Market
84
Current Price
485000.00
Direction Faces
East
Elementary School
Sunset Park Elem
Expected Closing Date
2026-03-26T00:00:00.000
Exterior Features
Balcony, Lighting, Sidewalk, Sliding Doors
Fireplace YN
false
Flood Zone Code
X
Flood Zone Date
2021-09-24
Flood Zone Panel
12095C0380H
Flooring
Carpet, Hardwood, Tile
Foundation Details
Slab
Furnished
Unfurnished
Garage Spaces
2
Garage YN
true
Heating
Central, Electric
High School
Windermere High School
Interior Features
Ceiling Fans(s), High Ceilings, Solid Wood Cabinets, Split Bedroom, Stone Counters, Tray Ceiling(s), Walk-In Closet(s), Window Treatments
Internet Address Display YN
true
Internet Automated Valuation Display YN
true
Internet Consumer Comment YN
false
Internet Entire Listing Display YN
true
Laundry Features
Inside, Laundry Room
Lease Restrictions YN
1
Levels
Two
List AOR
Orlando Regional
Living Area Meters
183.95
Living Area Source
Public Records
Living Area Units
Square Feet
Lot Features
Sidewalk, Unincorporated
Lot Size Acres
0.06
Lot Size Square Feet
2749
Lot Size Square Meters
255
Middle Or Junior School
Horizon West Middle School
Minimum Lease
8-12 Months
Modification Timestamp
2026-02-24T14:51:09.378Z
Monthly HOA Amount
315.00
New Construction YN
false
Occupant Type
Vacant
Other Equipment
Irrigation Equipment
Ownership
Fee Simple
Parcel Number
25-23-27-6226-00-850
Patio And Porch Features
Covered, Front Porch, Patio, Porch
Pet Restrictions
Contact L/A for specific info or find at https://www.jedimanagement.com/wp-content/uploads/sites/11/2022/11/2.-PRESTON-SQUARE-FAQ_10.14.2022.pdf
Pets Allowed
Yes
Pool Private YN
false
Postal Code Plus 4
5912
Previous List Price
499000
Price Change Timestamp
2026-02-13T20:49:41.000Z
Property Attached YN
false
Property Description
Corner Unit
Public Survey Range
27
Public Survey Section
25
Purchase Contract Date
2026-02-23
RATIO Current Price By Calculated SqFt
244.95
Realtor Info
Floor Plan Available, No Sign
Road Responsibility
Public Maintained Road
Road Surface Type
Asphalt
Roof
Shingle
Room Count
7
Security Features
Smoke Detector(s)
Senior Community YN
false
Sewer
Public Sewer
Showing Requirements
ShowingTime
Status Change Timestamp
2026-02-24T14:50:58.000Z
Tax Annual Amount
7162
Tax Block
19
Tax Book Number
71
Tax Legal Description
PRESTON SQUARE 71/19 LOT 85
Tax Lot
85
Tax Year
2024
Total Acreage
0 to less than 1/4
Total Annual Fees
3780.00
Total Monthly Fees
315.00
Township
23
Universal Property Id
US-12095-N-252327622600850-R-N
Unparsed Address
7028 VENTNOR DR
Utilities
BB/HS Internet Available, Cable Available, Electricity Available, Electricity Connected, Underground Utilities, Water Available, Water Connected
Vegetation
Mature Landscaping, Trees/Landscaped
Waterfront YN
false
Window Features
Blinds, Shutters, Window Treatments
Zoning
P-D
Neighborhood Map
Popup

Property Photos
Listing Photo
Listing Photo
Listing Photo
Listing Photo
Listing Photo
Listing Photo
Listing Photo
Listing Photo
Listing Photo
Listing Photo
Listing Photo
Listing Photo
Listing Photo
Listing Photo
Listing Photo
Listing Photo
Listing Photo
Listing Photo
Listing Photo
Listing Photo
Listing Photo
Listing Photo
Listing Photo
Listing Photo
Listing Photo
Listing Photo
Listing Photo
Listing Photo
Listing Photo
Listing Photo
Listing Photo
Listing Photo
Listing Photo
Listing Photo
Listing Photo
Listing Photo
Listing Photo
Listing Photo
Listing Photo
Listing Photo
Listing Photo
Listing Photo
Listing Photo
Listing Photo
Listing Photo
Listing Photo
Listing Photo
Listing Photo
Listing Photo
Listing Photo
Listing Photo
Listing Photo
Listing Photo
Listing Photo

MLS #MFRO6363663 Listing courtesy of Upside Real Estate Inc provided by Stellar MLS.

Similar Listings

$475,000
12060 Via Caselli Lane
Windermere
4BR/3BA
| Pending



All listing information is deemed reliable but not guaranteed and should be independently verified through personal inspection by appropriate professionals. Listings displayed on this website may be subject to prior sale or removal from sale; availability of any listing should always be independent verified. Listing information is provided for consumer personal, non-commercial use, solely to identify potential properties for potential purchase; all other use is strictly prohibited and may violate relevant federal and state law. The source of the listing data is as follows: Stellar MLS (updated 3/3/26 12:29 PM) |

Listing Search



Translate Tool

Featured Listings
Windermere Real Estate
$824,900
4 BED
2 BATH
Under contract-accepting backup offers. Welcome to this beautifully renovated home in highly desirable Windermere, where... Read More
Windermere Real Estate
$725,000
4 BED
4 BATH
Under contract-accepting backup offers. Welcome to this beautifully maintained four-bedroom, four-bath home in the desir... Read More
Windermere Real Estate
$565,000
4 BED
3 BATH
Roof is 2022, A beautiful Home in a wonderful Gated Community in Windermere. Home sits on a big lot that extends all the... Read More
Windermere Real Estate
$975,000
3 BED
2 BATH
Fully Renovated Windermere Home. Move-In Ready! Discover 735 Oakdale St, a beautifully updated 3-bedroom, 2.5-bathroom h... Read More
Windermere Real Estate
$850,000
4 BED
4 BATH
Behind the gates of Westover Club, 9669 Westover Club Circle presents a timeless expression of Windermere living — where... Read More
Contact Wendy Morris

407-575-5392

Wendy Morris LLC

Licensed in the State of Florida
BK 3146762
16797 Broadwater Avenue
Winter Garden, Florida 34787

Your privacy is our utmost concern. We will never sell your personal information. Privacy Policy
©2026 windermerefl.com - all rights reserved. | Site Map